693,00 €*
*Prijzen excl. btw
Artikelnummer: 2050370008
Downloads
Technische specificaties
Productgegevens
Montageaanwijzing en gebruiksaanwijzing
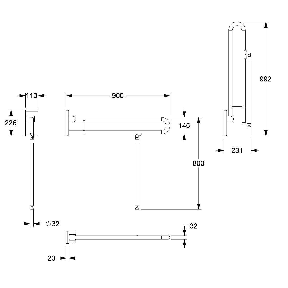
Technische tekening
Isometrische tekening
Afbeeldingsmateriaal
Product afbeelding
Montage afbeelding
Totale omgeving
Subtilieu
Totale download
ZIP-bestand
- Inox Care, une gamme résistante et polyvalente en acier inoxydable qui allie accessibilité et hygiène dans un design moderne
- Avec système de freinage réglable
- Avec une technique de palier lisse robuste et sans entretien
- faible encombrement grâce à sa formecompacte
- Avec pied escamotable muni d‘une extrémité en caoutchouc antidérapant
- Montage/démontage simple et rapide, la barre d’appui s’accroche sur la platine de fixation
- Le support au sol sert de soutien lorsque la qualité du mur est insuffisante, ce qui permet de réduire les forces résultantes sur la fixation murale
- Fixation invisible
- etanchéification des points de perçageconformément aux normes (DIN 18534-1) en combinaison avec les kits de fixation NORMBAU 7470xxx
- Pour les cloisons légères, une doublure en bois collé multicouche d'au moins 30 mm d'épaisseur est nécessaire
- Peut être équipée d’un porte-rouleau 2050300
- Produit certifié TÜV PRODUCT SERVICE
- Production conforme au règlement (EU) 2017/745 relatif aux dispositifs médicaux
- CE-certifié
- Conforme à la norme ÖNORM B 1600 et DIN 18040
- Le matériel de fixation doit être défini sur le chantier et adapté selon la configuration et la nature de la cloison
- Catégorie de produits : Barre d'appui rabattable
- Version du produit : avec pied escamotable
- Groupe de produits : 5500
- Platine de fixation : avec platine de fixation
- Longueur L : 900 mm
- Diamètre : 32 mm
- Hauteur de fixation : 800 mm
- Matériau : inox, qualité no 1.4301 (A2-AISI 304)
- Surface : haute brillance
- Version : à gauche et à droite
- Couleur : Poli brillant
- Charge : max. 125 kg

Brochures & Catalogi
NORMBAU website
Fabrikant

Normbau GmbH
Schwarzwaldstraße 15
77871 Renchen
Germany
normbau@allegion.com














